落合一丁目2号地

分譲地内 最終1棟 見学可
掲載日:
2026.1.26
最終更新日:
2026.4.16

次回更新予定日:
2026.4.30

物件写真

撮影年月日:2026.1.25

物件情報

  • 住所
    広島市安佐北区落合一丁目38番19号
  • アクセス
    広島交通バス「中岩ノ上」バス停 徒歩4分
    JR芸備線「玖村」駅 徒歩21分
  • 価格
    (消費税
    10%込)
    62,800,000円(消費税10%込)
  • 間取り
    3LDK
  • 土地面積
    167.09㎡(50.54坪)
  • 建物面積
    延床:103.26㎡(31.23坪) 、1F:53.97㎡(16.32坪) 、2F:49.29㎡(14.91坪)
  • 太陽光発電
    6.44kW
  • 蓄電池
    13.20kWh

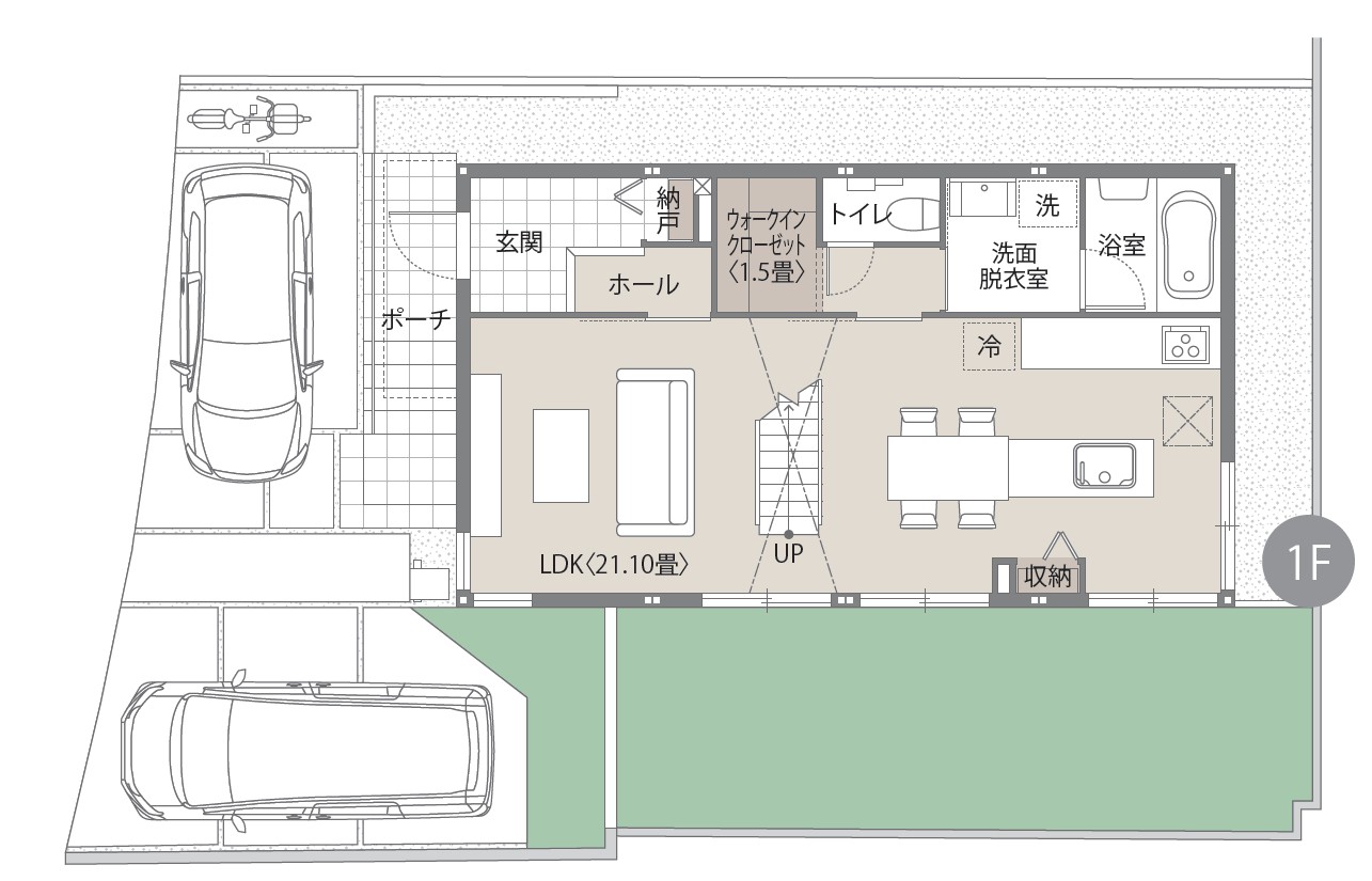
間取り

※間取りにある家具、調度品、
植栽、自動車は価格に含まれません

設備・仕様

太陽光発電システム
太陽光発電システム
①自宅で電気を作って暮らすエコな暮らしをサポート
②もしもの災害時でも電気を使える安心が。
③ソーラー発電で月々の光熱費が抑えられます。
④テレワークで自宅の電力消費が増えても安心。 ※メーカーのモデルチェンジにより、形状が変更となる場合があります。
蓄電池(13.2kWh)
蓄電池(13.2kWh)
①停電時でも生活に最低限 必要な電力を確保。
②太陽光発電の余った電気を貯めて夜に使うエコな生活※停電時には蓄電池の残量が無いと復旧しません。同時に使用できる電力には限りがあります。
※①事前に計画したコンセントでのみ電力使用が可能です。
快適エアリー(通年型空気調節システム)
快適エアリー(通年型空気調節システム)
①一階のフロア全体が足元からじんわり暖かい。
②廊下や洗面所など部屋以外にも暖かさが届く。
③家中の温度差を減らし、夏涼しく冬あったか。
④お家の中の温度差が少ない心地よい暮らし。
スマートハイムナビ(HEMS)
スマートハイムナビ(HEMS)
①電力状況を見える化し、省エネをアドバイス。
②空調機器などを外出先からスマホで操作。
③外出先からスマホでお風呂のお湯張りを開始。
④子どもの帰宅や宅配便をスマホに通知。 ※②、③、④ 対象の機種には制限があります。事前にアプリのダウンロードが必要です。
エコキュート
エコキュート
①たっぷり370リットルの貯湯タンクで断水時も安心。
②空気中の熱も利用してお湯を沸かすエコな給湯器
③ガス給湯器に比べて光熱費を抑えられます。
※画像は参考イメージ。メーカー、仕様により形状等が異なります。
アルミ樹脂複合サッシ
アルミ樹脂複合サッシ
暖房の熱を逃がしにくい断熱性の高い窓。
※開口の種類により一部複層ガラスアルミサッシの仕様となる場合もあります。
宅配ボックス
宅配ボックス
①外出中でも荷物が受け取れるので便利。
②接触しないで荷物を受け取るニューノーマルな暮らし
※メーカー、仕様により形状等が異なります。
食器洗い乾燥機
食器洗い乾燥機
①家事を減らし「家族時間」をもっと楽しく。
②家事の時短、節水に効果あり、手荒れ対策にも。
③食器洗いの時間が家族とのくつろぎタイムに。
浴室乾燥機
浴室乾燥機
①花粉の季節や梅雨時の洗濯の強い味方!
②浴室に干して、お部屋がスッキリ。
③花粉・梅雨時期の洗濯物ストレスを軽減。
ベタ基礎
ベタ基礎
液状化に強い、建物を面で支えるベタ基礎。
工場生産
工場生産
設計どおりの強さ・品質を約束する家づくり。
高強度ユニット
高強度ユニット
数百年に一度の地震※にも備えるユニット
※住宅性能表示制度の耐震等級(倒壊防止)に基づきます。
ボックスラーメン構造
ボックスラーメン構造
ユニットを連結し強靭な構造に。
ユニット工法
ユニット工法
工場で作ったユニットを組み上げて住宅を作る。※建築規模や天候、その他の条件により一日で完了しない場合があります。
高断熱住宅
高断熱住宅
天井・外壁には高性能グラスウールを充填。
タイル外壁
タイル外壁
①塗り替えがずっと不要な外壁。
②存在感のある質感がいつまでも続く外壁材。
※①目地部材の交換は必要です。

省エネ性能

  • エネルギー消費性能:
    ★★★★★★(削減率50%達成)
  • 断熱性能:6段階

※「省エネ性能ラベル」は特定の住戸の性能を示すものであり、全ての住戸の性能を示すものではありません。
※使用環境によってはエネルギー収支がゼロにならない場合があります。

区画

地図

広島市安佐北区落合一丁目38番19号

22 496 131*63

「マップコード」および「MAPCODE」は(株)デンソーの登録商標です。

周辺環境

広島市立落合東小学校 1200m/徒歩15分

広島市立落合中学校 2200m/徒歩28分

おきた内科クリニック 500m/徒歩6分

なかお内科消化器呼吸器クリニック・横山外科胃腸科 400m/徒歩5分

あだち歯科 550m/徒歩7分

ローソン 広島落合一丁目店 210m/徒歩3分

マックスバリュ 高陽店 550m/徒歩7分

マクドナルド 広島高陽店 550m/徒歩7分

ドミノ・ピザ広島落合店 350m/徒歩5分

岩上八幡宮 800m/徒歩10分

高陽ゴルフセンター 1000m/徒歩13分

高陽岩上郵便局 290m/徒歩4分

  • 物件名称
    落合一丁目2号地
  • 販売戸数
    1
  • 所在地
    広島市安佐北区落合一丁目38番19号
  • 建物の主たる部分の構造
    軽量鉄骨造2階建
  • 交通
    広島交通バス「中岩ノ上」バス停 徒歩4分
    JR芸備線「玖村」駅 徒歩21分
  • 土地面積
    167.09㎡(50.54坪)
  • 建物面積
    延床:103.26㎡(31.23坪)
    1F:53.97㎡(16.32坪)
    2F:49.29㎡(14.91坪)
  • 価格(販売価格)
    62,800,000円(消費税10%込)
  • 地目
    宅地
  • 用途地域
    第二種中高層住居専用地域
  • 建ぺい率
    60%
  • 容積率
    200%
  • 道路の幅員
    南西側9.1m(法第42条1項1号)※歩道含む
  • 主たる
    設備の概要
    ○電気:中国電力 ○ガス:都市ガス ○水道:公営水道 ○雨水:側溝 ○排水:公共下水道
  • 建築確認番号
    第ERI-25028800 号〈令和7年9月8日〉
  • 開発許可番号
  • 建物の建築年月日
    (または完成予定年月日)
    2026年1月完成
  • 最終更新日
    2026/4/16
  • 掲載日
    2026/1/26
  • 次回更新
    予定日
    2026/4/30
  • その他の制限
    〇防火・準防火等/法第22条指定区域 〇法令に基づく制限/広島市景観計画(一般区域)、宅地造成等規制区域 、立地適正化計画(居住誘導区域)
  • 備考
    外構工事はセキスイハイムの指定する業者で施工することを予めご了承ください。
  • 取引態様(建物)
    売主
  • 取引態様(土地)
    売主

広告主

  • 名称または商号
    セキスイハイム中四国株式会社 広島支店
  • 所在地
    広島市西区草津新町1丁目21-35 広島ミクシスビル8F
  • 電話番号
    082-270-5511
  • 宅地建物取引
    業者免許番号
    国土交通大臣(5)第6461号
  • 建設業許可番号
    国土交通大臣(特-5)第20234号
  • 所属団体名
    中国地区不動産公正取引協議会加盟 (公社)広島県宅地建物取引業協会会員
  • 営業時間
    10:00~18:00
  • 定休日
    火曜・水曜

売主(建物)

  • 名称または商号
    セキスイハイム中四国株式会社 広島支店
  • 所在地
    広島市西区草津新町1丁目21-35 広島ミクシスビル8F
  • 電話番号
    082-270-5511
  • 宅地建物取引
    業者免許番号
    国土交通大臣(5)第6461号
  • 建設業許可番号
    国土交通大臣(特-5)第20234号
  • 所属団体名
    中国地区不動産公正取引協議会加盟 (公社)広島県宅地建物取引業協会会員

売主(土地)

  • 名称または商号
    セキスイハイム中四国株式会社 広島支店
  • 所在地
    広島市西区草津新町1丁目21-35 広島ミクシスビル8F
  • 電話番号
    082-270-5511
  • 宅地建物取引
    業者免許番号
    国土交通大臣(5)第6461号
  • 建設業許可番号
    国土交通大臣(特-5)第20234号
  • 所属団体名
    中国地区不動産公正取引協議会加盟(公社)広島県宅地建物取引業協会会員
ドリームステップキャンペーン 事前予約限定 QUOカードPay最大13000円分プレゼント!