岡山市中区海吉3号地(SmartPowerStation-Urban)
見学可
広々リビングに自然と家族が集まるお家!
- 掲載日:
- 2025.4.4
- 最終更新日:
- 2025.12.11
- 次回更新予定日:
- 2025.12.25
物件写真
- 岡山市立富山小学校〈1,070m/徒歩14分〉
- 両備バス「海吉」バス停〈277m/徒歩5分〉
- 全5区画の統一された分譲地で綺麗な街並み
物件情報
-
- 住所
- 岡山市中区海吉1926番3
-
- アクセス
- JR赤穂線「大多羅」駅 2.850~2930m (徒歩36~37分)
両備バス「海吉」バス停 247~327m (徒歩4~5分)
-
- 価格
(消費税
10%込) - 47,800,000円(消費税10%込)
- 価格
-
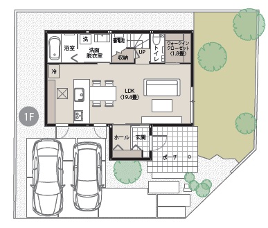
- 間取り
- 3LDK
-
- 土地面積
- 168.69㎡(51.02坪)
-
- 建物面積
- 延床:100.33㎡(28.34坪) 、1F:52.56㎡(15.89坪) 、2F:47.77㎡(14.45坪)
-
- 太陽光発電
- 5.56kW
-
- 蓄電池
- 4.90kWh
間取り
※間取りにある家具、調度品、
植栽、自動車は価格に含まれません
1階
2階
設備・仕様
省エネ性能

-
エネルギー消費性能:
☆☆☆☆☆☆(削減率0%未満) - 断熱性能:1段階
※「省エネ性能ラベル」は特定の住戸の性能を示すものであり、全ての住戸の性能を示すものではありません。
※使用環境によってはエネルギー収支がゼロにならない場合があります。
区画
-
- 物件名称
- 岡山市中区海吉3号地(SmartPowerStation-Urban)
-
- 販売戸数
- 1戸
-
- 所在地
- 岡山市中区海吉1926番3
-
- 建物の主たる部分の構造
- 鉄骨系
-
- 交通
-
JR赤穂線「大多羅」駅 2.850~2930m (徒歩36~37分)
両備バス「海吉」バス停 247~327m (徒歩4~5分)
-
- 土地面積
- 168.69㎡(51.02坪)
-
- 建物面積
- 延床:100.33㎡(28.34坪)
1F:52.56㎡(15.89坪)
2F:47.77㎡(14.45坪)
-
- 価格(販売価格)
- 47,800,000円(消費税10%込)
-
- 地目
- 宅地
-
- 用途地域
- 第一種低層住居専用地域
-
- 建ぺい率
- 50%
-
- 容積率
- 100%
-
- 道路の幅員
- 分譲地内5.0m、東側5.0~7.5m(市道)
-
- 主たる
設備の概要 - 電気:中国電力、ガス:個別LPG、水道:公営水道、雨水:側溝、排水:公共下水道
- 主たる
-
- 建築確認番号
- 第ERI-24024478〈令和6年7月25日〉
-
- 開発許可番号
-
- 建物の建築年月日
(または完成予定年月日) - 2024年11月26日
- 建物の建築年月日
-
- 最終更新日
- 2025/12/11
-
- 掲載日
- 2025/4/4
-
- 次回更新
予定日 - 2025/12/25
- 次回更新
-
- その他の制限
-
- 備考
-
- 取引態様(建物)
- 売主
-
- 取引態様(土地)
- 売主
広告主
-
- 名称または商号
- セキスイハイム中四国株式会社 岡山支店
-
- 所在地
- 国土交通大臣(5)第6461号
-
- 電話番号
- 086-800-6600
-
- 宅地建物取引
業者免許番号 - 国土交通大臣(4)第6461号
- 宅地建物取引
-
- 建設業許可番号
- 国土交通大臣(特-30)第20234号
-
- 所属団体名
- (公社)岡山県宅地建物取引業協会会員 中国地区不動産公正取引協議会加盟 優良ストック住宅推進協議会加盟
-
- 営業時間
- 10:00~18:00
-
- 定休日
- 火曜・水曜
売主(建物)
-
- 名称または商号
- セキスイハイム中四国株式会社 岡山支店
-
- 所在地
- 岡山県岡山市北区今1-7-11 西岡山セントラルビル 2F
-
- 電話番号
- 086-800-6600
-
- 宅地建物取引
業者免許番号 - 国土交通大臣(5)第6461号
- 宅地建物取引
-
- 建設業許可番号
- 国土交通大臣(特-5)第20234号
-
- 所属団体名
-
(公社)岡山県宅地建物取引業協会会員
中国地区不動産公正取引協議会加盟
優良ストック住宅推進協議会加盟
売主(土地)
-
- 名称または商号
- セキスイハイム中四国株式会社 岡山支店
-
- 所在地
- 岡山県岡山市北区今1-7-11 西岡山セントラルビル 2F
-
- 電話番号
- 086-800-6600
-
- 宅地建物取引
業者免許番号 - 国土交通大臣(5)第6461号
- 宅地建物取引
-
- 建設業許可番号
- 国土交通大臣(特-5)第20234号
-
- 所属団体名
-
(公社)岡山県宅地建物取引業協会会員
中国地区不動産公正取引協議会加盟
優良ストック住宅推進協議会加盟
セキスイハイム中四国株式会社の会場(展示場・分譲住宅・分譲地へご来場されたことがない方)へ初めてご来場される方が対象となります※展示場・分譲住宅・分譲地をご見学のうえアンケートにご記入いただいた方が対象となります※複数の会場へご来場いただいた場合でも、ご来場プレゼントは1回限りとなります※Web見学予約をされたご本人様のEメールアドレスへの進呈とさせていただきます※進呈はご来場確認後の翌月以降にEメールでの進呈となります※本キャンペーンは予告なく終了する場合がございます。※本キャンペーンはセキスイハイム中四国株式会社による提供です。本キャンペーンについてのお問い合わせはAmazonではお受けしておりません。セキスイハイム中四国株式会社キャンペーン事務局[info@816c.jp]までお願いいたします。Amazon、Amazon.co.jpおよびそれらのロゴはAmazon.com, Inc、またはその関連会社の商標です。※他のキャンペーンとの併用不可。
