スマートハイムプレイス連島1号地(SmartPowerStation FX Urban)
見学可
『We can 家キャン! お家キャンプができる家』
- 掲載日:
- 2025.3.27
- 最終更新日:
- 2025.10.16
- 次回更新予定日:
- 2025.10.30
物件写真
- 『We can 家キャン!お家キャンプができる家』
- プライベートガーデン『うちそとテラス』で、視線を気にせず、家族で楽しい休日を過ごせます♪
- 子供室が3室ある、4LDKの分譲住宅です♪
物件情報
-
- 住所
- 岡山県倉敷市連島一丁目3番1、3番47
-
- アクセス
- 水島臨海鉄道線「弥生」駅 約1,040m(徒歩13分)
両備バス「瑞穂町」バス停 約450m(徒歩6分)
-
- 価格
(消費税
10%込) - 54,900,000円(消費税10%込)
- 価格
-
- 間取り
- 4LDK+S(納戸)
-
- 土地面積
- 161.72㎡(48.92坪)
-
- 建物面積
- 延床:107.54㎡(32.53坪) 、1F:53.77㎡(16.26坪) 、2F:53.77㎡(16.26坪)
-
- 太陽光発電
- 6.36kW
-
- 蓄電池
- 4.90kWh
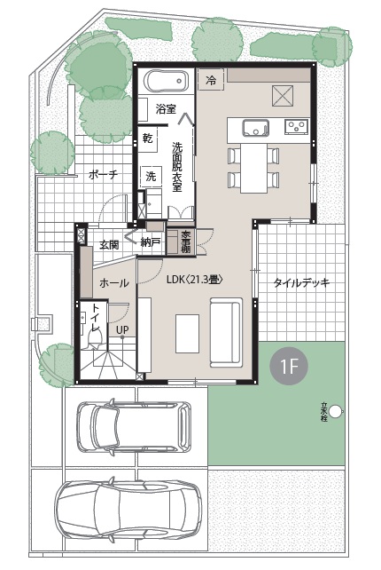
間取り
※間取りにある家具、調度品、
植栽、自動車は価格に含まれません

1階

2階

設備・仕様
省エネ性能

-
エネルギー消費性能:
★★★★★★(削減率50%達成) - 断熱性能:6段階
※「省エネ性能ラベル」は特定の住戸の性能を示すものであり、全ての住戸の性能を示すものではありません。
※使用環境によってはエネルギー収支がゼロにならない場合があります。
区画

-
- 物件名称
- スマートハイムプレイス連島1号地(SmartPowerStation FX Urban)
-
- 販売戸数
- 4戸
-
- 所在地
- 岡山県倉敷市連島一丁目3番1、3番47
-
- 建物の主たる部分の構造
- 鉄骨造
-
- 交通
-
水島臨海鉄道線「弥生」駅 約1,040m(徒歩13分)
両備バス「瑞穂町」バス停 約450m(徒歩6分)
-
- 土地面積
- 161.72㎡(48.92坪)
-
- 建物面積
- 延床:107.54㎡(32.53坪)
1F:53.77㎡(16.26坪)
2F:53.77㎡(16.26坪)
-
- 価格(販売価格)
- 54,900,000円(消費税10%込)
-
- 地目
- 宅地
-
- 用途地域
- 第二種住居地域
-
- 建ぺい率
- 60%
-
- 容積率
- 200%
-
- 道路の幅員
- 北側5.8m、西側9.0m※倉敷市道(5号地は延長敷地あり)
-
- 主たる
設備の概要 - 電気:中国電力、ガス:都市ガス、水道:公営水道、雨水:側溝、排水:公共下水道
- 主たる
-
- 建築確認番号
- 第ERI-24035973号
-
- 開発許可番号
-
- 建物の建築年月日
(または完成予定年月日) - 2025年4月完成予定
- 建物の建築年月日
-
- 最終更新日
- 2025/10/16
-
- 掲載日
- 2025/3/27
-
- 次回更新
予定日 - 2025/10/30
- 次回更新
-
- その他の制限
- ○法第22条区域○倉敷市景観条例○水島第二亀島土地区画整理事業
-
- 備考
- ○ゴミステーションは、東 側方面で用水路上にあります。町内会入会が条件となります。○3号地の北東部分の上空に電線が通っています。変更はできません。○まちなみデザインガイドラインがあります。
-
- 取引態様(建物)
- 売主
-
- 取引態様(土地)
- 売主
広告主
-
- 名称または商号
- セキスイハイム中四国株式会社 岡山支店
-
- 所在地
- 岡山県岡山市北区今1-7-11 西岡山セントラルビル 2F
-
- 電話番号
- 086-800-6600
-
- 宅地建物取引
業者免許番号 - 国土交通大臣(5)第6461号
- 宅地建物取引
-
- 建設業許可番号
- 国土交通大臣(特-5)第20234号
-
- 所属団体名
- (公社)岡山県宅地建物取引業協会会員 中国地区不動産公正取引協議会加盟 優良ストック住宅推進協議会加盟
-
- 営業時間
- 10:00~18:00
-
- 定休日
- 火曜・水曜
売主(建物)
-
- 名称または商号
- セキスイハイム中四国株式会社 岡山支店
-
- 所在地
- 岡山県岡山市北区今1-7-11 西岡山セントラルビル 2F
-
- 電話番号
- 086-800-6600
-
- 宅地建物取引
業者免許番号 - 国土交通大臣(5)第6461号
- 宅地建物取引
-
- 建設業許可番号
- 国土交通大臣(特-5)第20234号
-
- 所属団体名
- (公社)岡山県宅地建物取引業協会会員 中国地区不動産公正取引協議会加盟 優良ストック住宅推進協議会加盟
売主(土地)
-
- 名称または商号
- セキスイハイム中四国株式会社 岡山支店
-
- 所在地
- 岡山県岡山市北区今1-7-11 西岡山セントラルビル 2F
-
- 電話番号
- 086-800-6600
-
- 宅地建物取引
業者免許番号 - 国土交通大臣(5)第6461号
- 宅地建物取引
-
- 建設業許可番号
- 国土交通大臣(特-5)第20234号
-
- 所属団体名
-
(公社)岡山県宅地建物取引業協会会員
中国地区不動産公正取引協議会加盟
優良ストック住宅推進協議会加盟

セキスイハイム中四国株式会社の会場(展示場・分譲住宅・分譲地へご来場されたことがない方)へ初めてご来場される方が対象となります※展示場・分譲住宅・分譲地をご見学のうえアンケートにご記入いただいた方が対象となります※複数の会場へご来場いただいた場合でも、ご来場プレゼントは1回限りとなります※Web見学予約をされたご本人様のEメールアドレスへの進呈とさせていただきます※進呈はご来場確認後の翌月以降にEメールでの進呈となります※本キャンペーンは予告なく終了する場合がございます。※本キャンペーンはセキスイハイム中四国株式会社による提供です。本キャンペーンについてのお問い合わせはAmazonではお受けしておりません。セキスイハイム中四国株式会社キャンペーン事務局[info@816c.jp]までお願いいたします。Amazon、Amazon.co.jpおよびそれらのロゴはAmazon.com, Inc、またはその関連会社の商標です。※他のキャンペーンとの併用不可。